中建玖玥湾 在售

暂无资料 景观住宅 品牌地产 热销楼盘 海景地产

均价: 31000元/㎡ (有效期  2024-12-31)

查询最近真实成交价

地址港前大道与石场上路交界处

立即查询

最新优惠、底价查询
2802人已查询

致电售楼处理解更多信息

楼盘动态、政策行情、优惠信息等可免费咨询

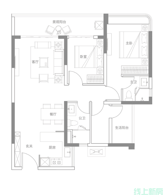
楼盘户型

好户型很重要!

专家为您详解户型问题

帮我看户型
楼盘备案价格一览表
楼盘详情
  • 开盘时间 2021年10月01日 开盘通知
  • 交房时间2023年10月31日
  • 主力户型3居(建面100㎡) 3居(建面120㎡) 2居(建面100㎡)
  • 中建二局(广州)房地产开发有限责任公司
  • 20220150
  • 楼盘地址 港前大道与石场上路交界处
查看全部楼盘信息
楼盘相册

效果图 共11张

交通图 共2张

实景图 共7张

样板间 共19张

余房查询
成交价查询
周边配套
  • 商业

  • 交通

  • 教育

  • 医疗

港前大道与石场上路交界处
房贷参考
请选择户型
  • 372
  • 310
  • 372
  • 310
  • 434

房屋总价约:

首付:(3成)

贷款:(20年)

利息:

月均还款

房贷计算器

置业顾问
何贵述 免费服务 21 人
用户点评

请将您的疑问告诉我们吧

  • 价格: 3 项目性价比情况
  • 地段: 3 项目所在地理位置情况
  • 配套: 3 配套与项目的距离及规模大小
  • 交通: 3 项目到交通实际距离远近
  • 环境: 3 项目内绿化及周边污染情况
综合评分
3
根据评分项目自动计算

验证码 换一张
查看更多房友点评
楼盘推荐
查看更多推荐楼盘
关于我们联系我们